VacturesContact

Project

Maatwerk Garagekasten

Opdrachtgever: Particulier
Locatie: Goes
Oplevering: 2025
Expertise:
chevron-left
chevron-right

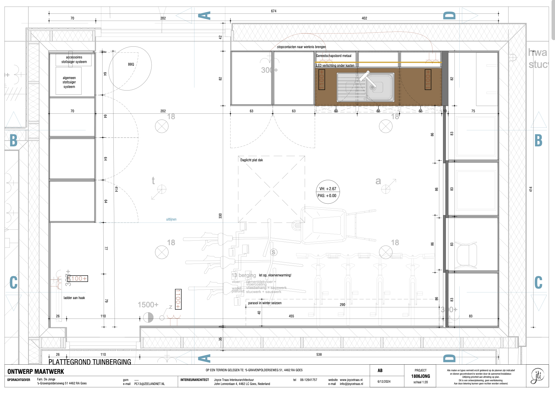
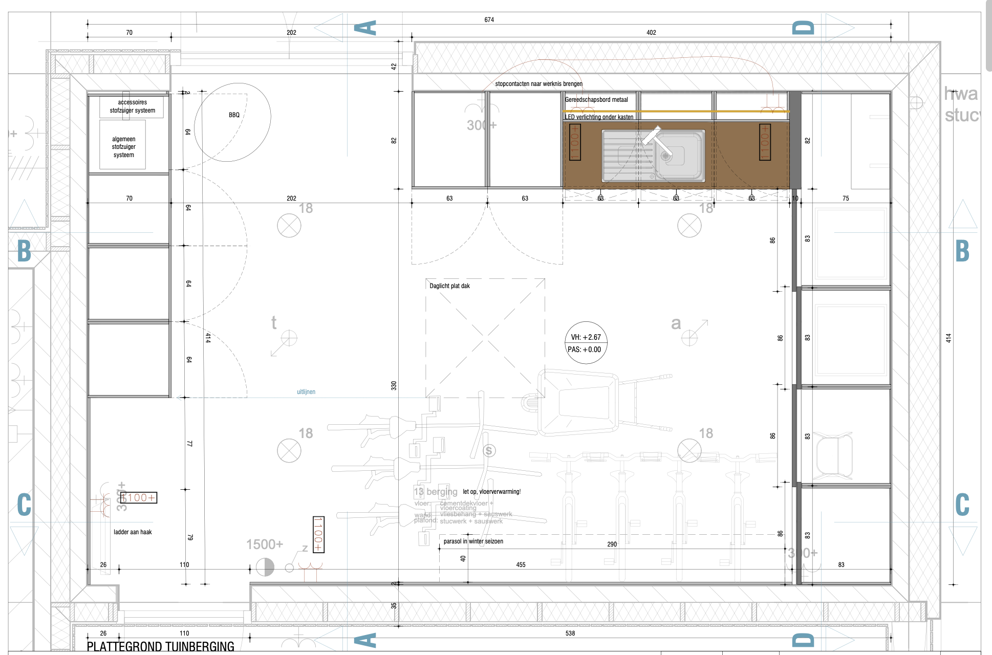
Maatwerk garagekasten in Goes, ontworpen rondom bestaande techniek

Voor deze woning in Goes realiseerde GH maatwerk garagekasten, volledig afgestemd op het gebruik van de ruimte én de aanwezige techniek. De garage is niet alleen bedoeld als berging, maar bevat ook vaste installaties zoals een centrale stofzuigerunit. Dat vroeg om een doordachte maatwerkoplossing.

In samenwerking met interieurarchitect Joyce Traas is de garage eerst volledig uitgewerkt in tekeningen. Pas daarna zijn de kasten geproduceerd en gemonteerd.

Lees meer over onze werkwijze

Van tekening naar maatwerk garage-inrichting

Voorafgaand aan de uitvoering is de garage volledig uitgewerkt in tekeningen. In deze ontwerpfase werkten GH en Joyce Traas nauw samen. De interieurarchitect bracht het ruimtelijke en functionele ontwerp in, terwijl GH meedacht over maakbaarheid, maatvoering en detaillering.

De tekeningen laten zien hoe keuzes tot stand komen voordat er gebouwd wordt. Ze maken zichtbaar hoe vaste elementen in de ruimte zijn meegenomen en hoe de kastindeling daarop is afgestemd. Dit proces zorgt ervoor dat ontwerp en uitvoering geen losse fases zijn, maar direct op elkaar aansluiten.

Maatwerk rondom bestaande elementen

Een belangrijk uitgangspunt in dit project was het integreren van de centrale stofzuigerunit. In plaats van deze installatie te verplaatsen of te verbergen achter losse omkastingen, is ervoor gekozen de kasten rondom dit element te ontwerpen.

Hierdoor wordt de techniek onderdeel van de totale indeling, zonder dat deze de uitstraling van de garage bepaalt. De kastwand blijft rustig en samenhangend, terwijl de installatie toegankelijk blijft. Deze benadering laat zien wat maatwerk mogelijk maakt wanneer er niet vanuit standaardoplossingen wordt gedacht.

Samenwerking tussen ontwerp en uitvoering

Dit project laat goed zien hoe een samenwerking tussen interieurarchitect en interieurbouwer tot een sterk eindresultaat leidt. Het ontwerp vormt het uitgangspunt, maar wordt continu afgestemd op de uitvoering. Daardoor ontstaat maatwerk waarin vorm, functie en detaillering in balans zijn.

De tekeningen geven een inkijkje in dat proces. Ze laten zien hoe keuzes worden gemaakt en hoe een maatwerkoplossing stap voor stap wordt opgebouwd, nog voordat er iets geproduceerd wordt.

GH – maatwerk interieurbouw in Zeeland

GH ontwerpt, produceert en monteert maatwerk interieuroplossingen voor particuliere en zakelijke opdrachtgevers. Dankzij onze eigen interieurbouwstudio en moderne productiemiddelen kunnen wij oplossingen realiseren die exact aansluiten op de ruimte en het gebruik.

Bent u benieuwd wat maatwerk in uw garage of berging kan betekenen? Wij denken graag met u mee!
Aan dit project werkten mee: Joyce Traas
Beelden: Suzan Fotografie
Bekijk meer projecten
cross linkedin facebook pinterest youtube rss twitter instagram facebook-blank rss-blank linkedin-blank pinterest youtube twitter instagram